宽槽型振动给煤机简介
639cc全民彩 GZGKM系列宽槽型振动给煤机是选煤厂振动筛或跳汰机前给料的一种节能型给煤机。该机由新型振动电机直接驱动、结构简单紧凑、便于窄小空间布置安装;给煤连续均匀,配用电控箱,可实现给煤量的任意调节。本机也广泛应用于煤炭、冶金、建材、化工、轻工等行业的筛前给料或者有布料要求的工艺中。

宽槽型振动给煤机技术参数
| | GZGKM-120 | GZGKM-160 | GZGKM-180 | GZGKM-200 | GZGKM-220 | GZGKM-280 | GZGKM-320 |
| 给料机宽度(mm) | 1200 | 1600 | 1800 | 2000 | 2200 | 2800 | 2300 |
| 给料粒度(mm) | 0-120 | 0-120 | 0-120 | 0-120 | 0-120 | 0-120 | 0-120 |
| 给料量(t/h) | 100-150 | 100-175 | 100-200 | 15-225 | 150-250 | 200-300 | 200-350 |
| 功率(kw) | 2×1.50 | 2×1.50 | 2×2.20 | 2×2.20 | 2×2.20 | 2×3.70 | 2×3.70 |
| 电机型号 | YZO-20-6 | YZO-20-6 | YZO-30-6 | YZO-30-6 | YZO-30-6 | YZO-50-6 | YZO-50-6 |
| 振频(Hz) | 16 | 16 | 16 | 16 | 16 | 16 | 16 |
| 振幅(mm) | 4-6 | 4-6 | 4-6 | 4-6 | 4-6 | 4-6 | 4-6 |
| 安装倾角 | 0°-10° | 0°-10° | 0°-10° | 0°-10° | 0°-10° | 0°-10° | 0°-10° |
| 总重(kg) | 800 | 920 | 1200 | 1370 | 1480 | 1800 | 1970 |
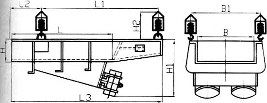
外形图

外形尺寸
| | GZGKM-120 | GZGKM-160 | GZGKM-180 | GZGKM-200 | GZGKM-220 | GZGKM-280 | GZGKM-320 |
| B | 1200 | 1600 | 1800 | 2000 | 2200 | 2800 | 3200 |
| B1 | 1250 | 1650 | 1850 | 2050 | 2250 | 2850 | 3250 |
| H | 300 | 300 | 300 | 300 | 300 | 300 | 300 |
| H1 | 900 | 900 | 950 | 950 | 950 | 1030 | 1030 |
| H2 | -550 | -550 | -600 | -600 | -600 | -700 | -700 |
| L | 1600 | 1600 | 1600 | 1600 | 1600 | 1600 | 1600 |
| L1 | 1900 | 1900 | 1900 | 1850 | 1850 | 1850 | 1750 |
| L2 | 250 | 250 | 250 | 300 | 300 | 300 | 400 |
| L3 | 2200 | 2200 | 2200 | 2200 | 2200 | 2200 | 2200 |